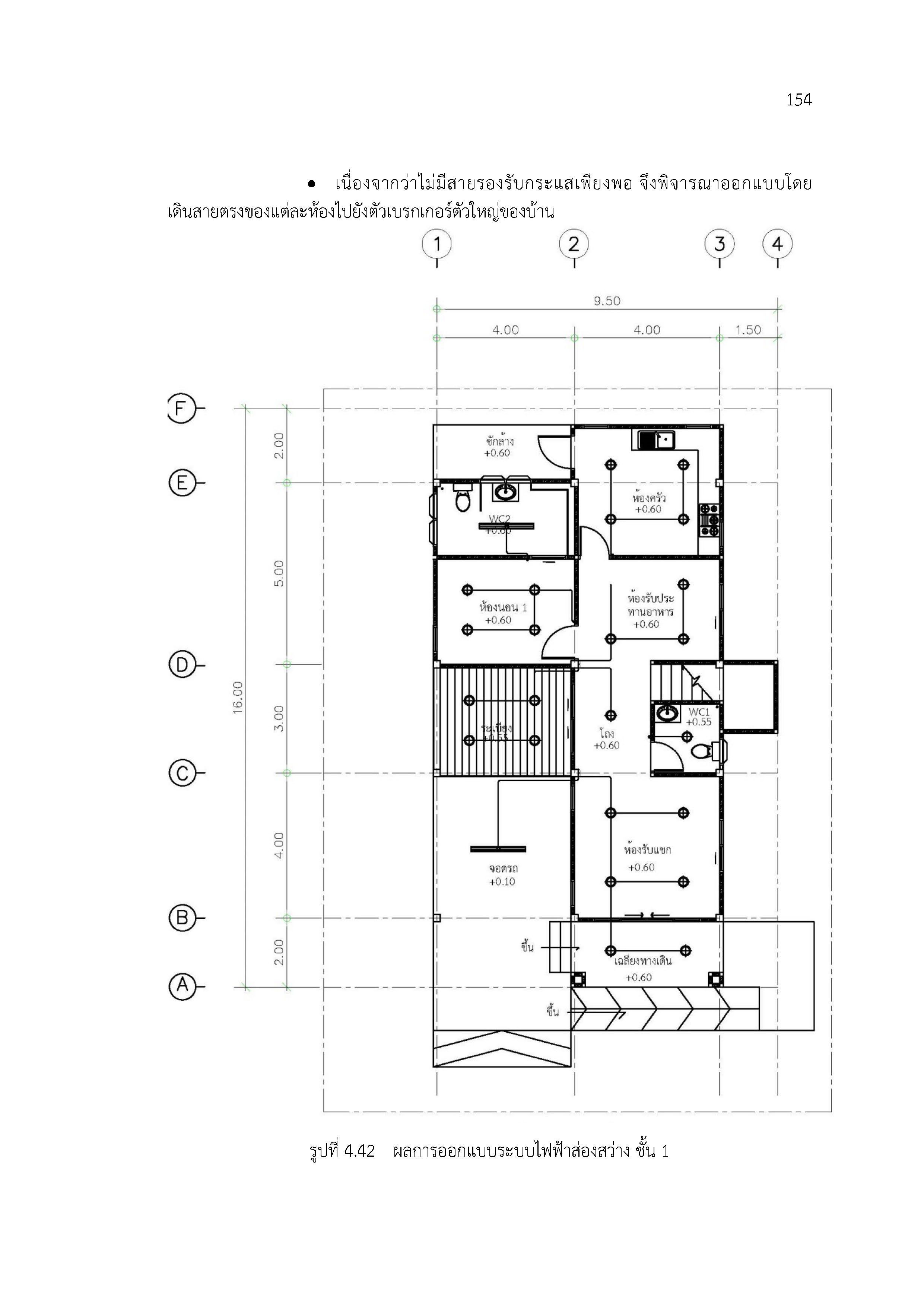
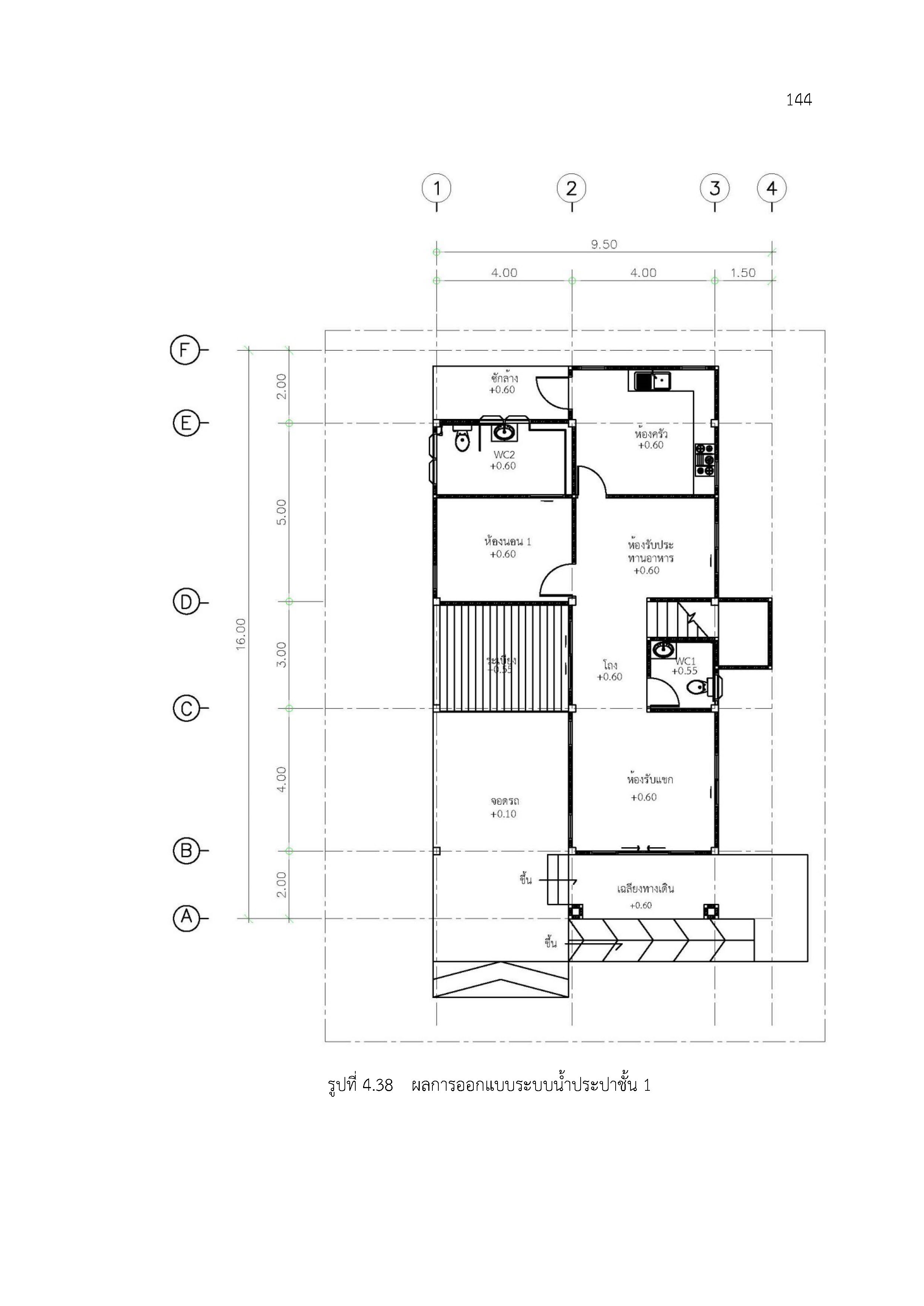
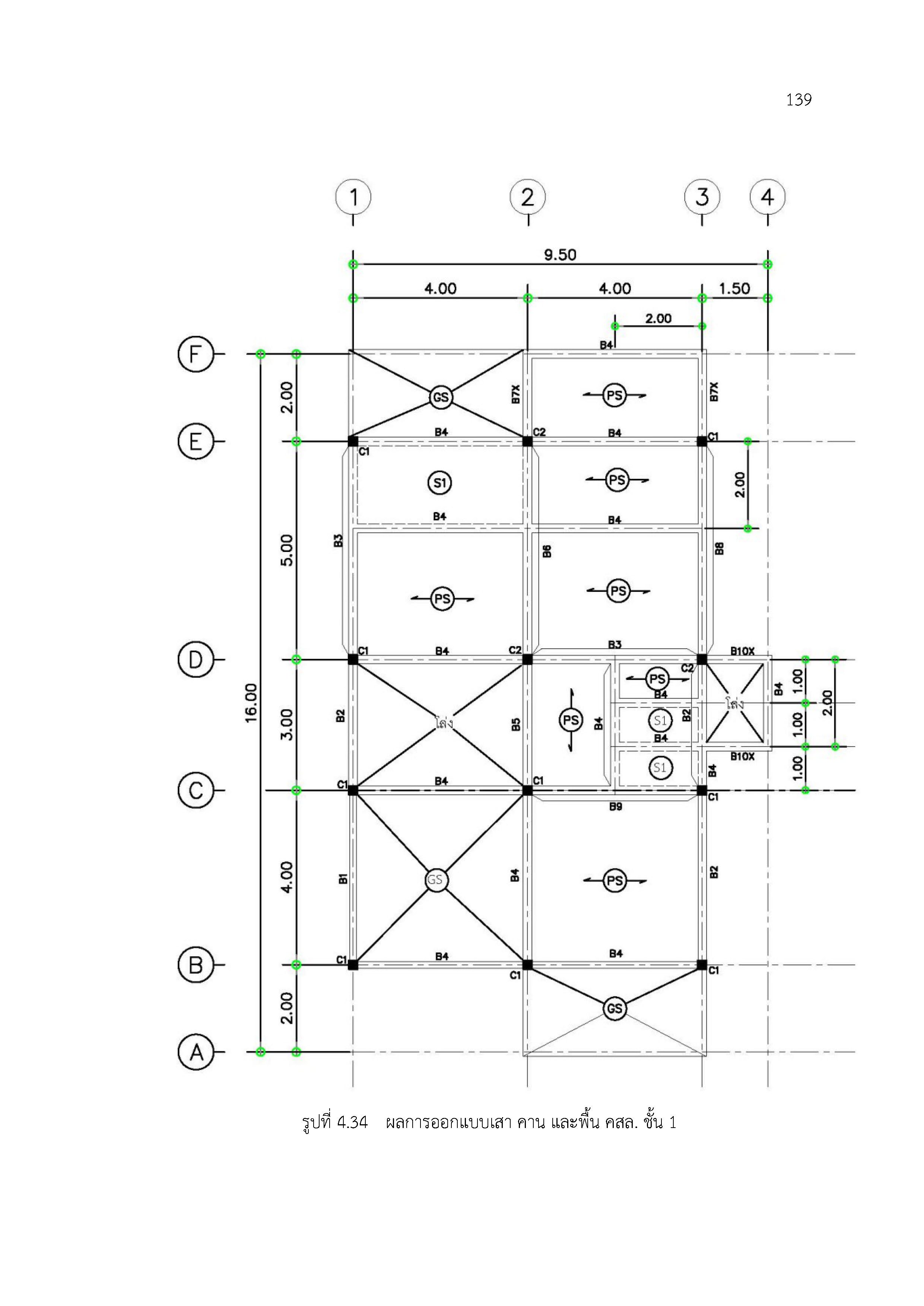
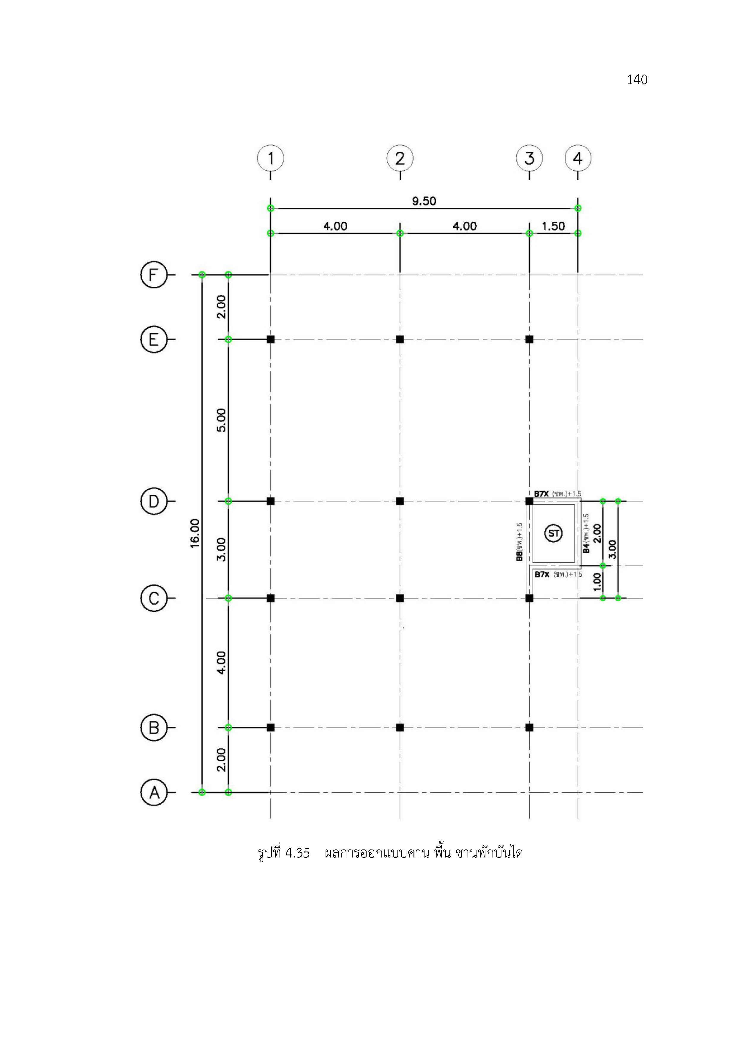
Copyright 2026 - Civil Engineering KBU

โครงงานวิศวกรรมโยธา




















































































 

f t g m